На Сихові планують облаштувати новий сквер імені Олега Бабія | Львівська мануфактура новин
На Сихові планують облаштувати новий сквер імені Олега Бабія
27 Червня, 16:02

На Сихові планують облаштувати новий сквер імені Олега Бабія

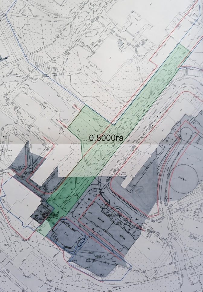
На Сихові планують облаштувати новий сквер на пів гектара. Про це йдеться у відповідній ухвалі на інформаційному порталі депутатів Львівської міськради.

Новий сквер розташовуватиметься в районі ліцеїв «Оріяна» та «Сихівський», на вул. Гната Хоткевича. Ділянці хочуть присвоїти назву «Сквер імені Олега Бабія».

Таким чином хочуть забезпечити ефективне використання земель міста, зберегти зелені насадження та організувати відпочинок для населення.

Додамо, що полковник Олег Бабій загинув під час цієї спецоперації, прикриваючи відхід побратимів. Разом з хлопцями він пройшов 600 км по території росії та знищив три ворожі бомбардувальники.